Bifamiliare in vendita

Pandino, Via Antonio da Pandino
€ 410.000
4 locali 4 locali
145 Mq 145 Mq
2 bagni 2 bagni

Bifamiliare in vendita

Pandino, Via Antonio da Pandino

Descrizione annuncio

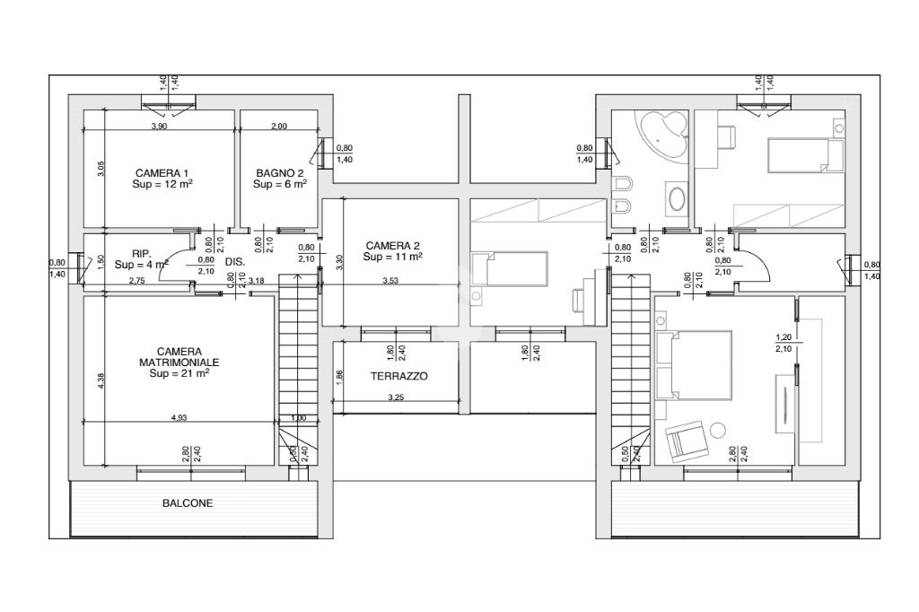
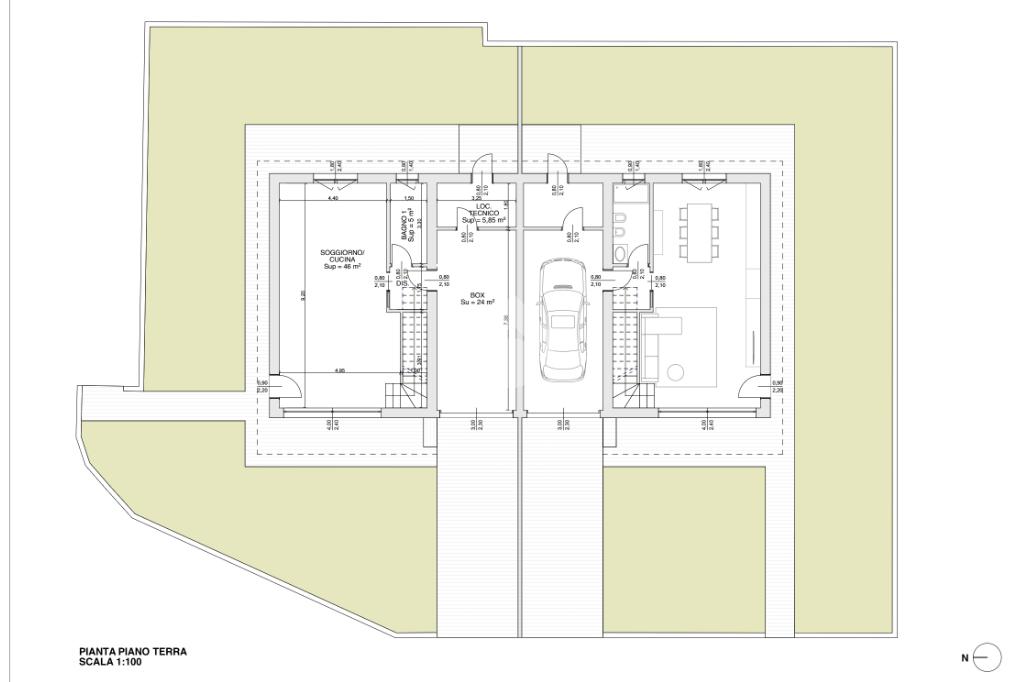
PANDINO: Prenotasi nuove porzioni di ville bifamiliari, divise dai box, con finiture moderne e con alta efficienza energetica. Ogni abitazione si svilupperà su due piani abitativi con superficie complessiva di 145mq. Il progetto prevede al piano terra soggiorno e cucina di 46mq, disimpegno e bagno di servizio; al piano primo tre camere da letto, disimpegno, ripostiglio e bagno padronale. La proprietà sarà completa di balcone, terrazzino, giardino di 280mq, box, locale tecnico e posto auto. Le ampie metrature danno la possibilità di creare la quarta camera e il terzo bagno. Gli spazi interni sono progettati per garantire funzionalità e comfort, con una distribuzione che favorisce la vivibilità quotidiana. La zona giorno è luminosa e accogliente, mentre la zona notte assicura tranquillità e privacy. La costruzione rispetta le normative energetiche più recenti, garantendo efficienza e risparmio. La posizione dell'immobile consente di godere della tranquillità del contesto residenziale di Pandino, pur essendo a breve distanza dai principali servizi e collegamenti. Un'opportunità ideale per chi cerca una soluzione abitativa moderna e ben progettata. Consegna per primavera 2027

Mostra tutto

Nelle vicinanze

Trasporto pubblico Trasporto pubblico
Trasporto pubblico
680 m
Scuole Scuole
Scuola media statale L. Berinzaghi
320 m
Scuole
400 m
Bar Bar
Café Fontaine
640 m
Bar Gradella
2,6 Km
Ristoranti Ristoranti
Ristoranti
670 m
Leon Rampante
2,4 Km
Il borgo
2,6 Km
Osteria degli Amici
2,6 Km
Mostra tutto

Caratteristiche

Rif.:
61149086
Piano:
2 di 2 (Piano su più livelli)
Box:
1
Posti auto:
1
Balconi:
1
Terrazzi:
1
Mostra tutto
Prezzo Prezzo
€ 410.000
Rata mutuo Rata mutuo
€ 1.943 / mese
Spese annue Spese annue
€ 0
Proponi il tuo prezzoProponi il tuo prezzo

Classe Energetica

A1
A1
A1
A1
A1
A1
A1
A1
A1
EP globale non rinnovabile:
1.00 kW h/m² anno
EP globale rinnovabile:
1.00 kW h/m² anno
EP invernale del fabbricato:
EP estiva del fabbricato:
Anno di costruzione:
2026
Riscaldamento:
Autonomo
Tipo impianto:
A pavimento
Tipo alimentazione:
Metano

Ti interessa visionare l'immobile?

Fissa un appuntamento  Fissa un appuntamento

Richiedi informazioni

Clicca su Leggi per aprire l'informativa
* Questi campi sono obbligatori

Calcola il tuo mutuo

Semplice e senza impegno
Anticipo

( % )
Mutuo

( % )

pochi semplici passi

inserisci i tuoi dati
Questionario completato
Grazie per aver richiesto un appuntamento senza impegno con un nostro Consulente del Credito e Assicurativo.

Hai inserito correttamente tutti i dati necessari e a breve riceverai una e-mail con un link da convalidare per inviare i tuoi dati.
Affiliato
Tecnopandino Sas
Via Umberto I, 94 26025 Pandino (CR)

Il nostro staff


  • Ettore Grasso
    Affiliato

  • Elisa Rossetti
    Coordinatrice

  • Alessandro Chiappetta
    Collaboratore

  • Andrea Liso
    Collaboratore
Via Umberto I, 94 26025 Pandino (CR)
Zona: Pandino - Palazzo Pignano - Trescore Cremasco - Scannabue
Mostra su mappa
Orari: Dal Lunedì al Venerdì: 9.00-12.30 14.30-20.00 Sabato chiusura ore 18.00
Affiliato
Tecnopandino Sas
Via Umberto I, 94 26025 Pandino (CR)

2026 Tecnocasa Franchising S.p.A. - P. IVA 08365160152 - Via Monte Bianco 60/A 20089 Rozzano (MI). Ogni agenzia ha un proprio titolare ed è autonoma. Privacy policy | Policy utilizzo | Cookie policy