Villa singola in vendita

Pandino, Via Torchiera
€ 759.000
5 locali 5 locali
550 Mq 550 Mq
6 bagni 6 bagni

Villa singola in vendita

Pandino, Via Torchiera

Descrizione annuncio

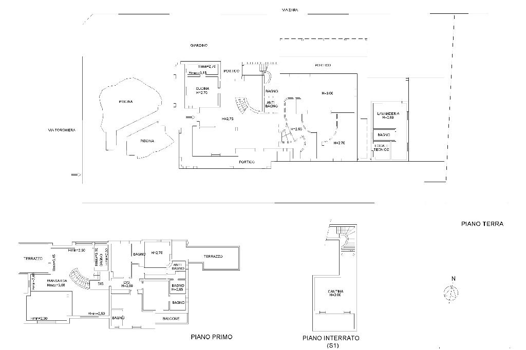
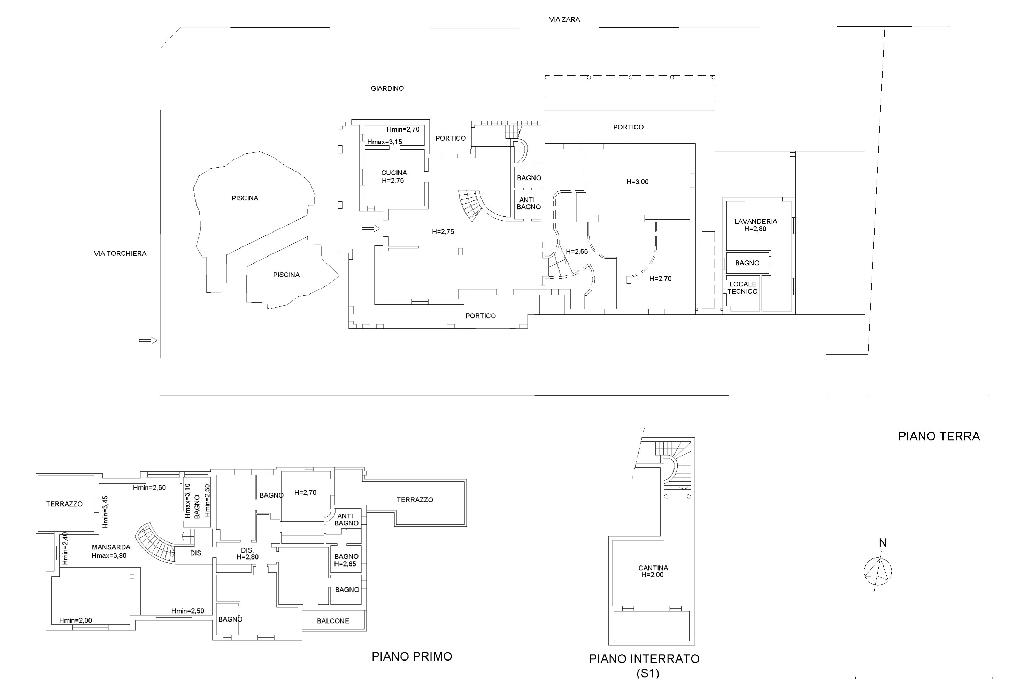
PANDINO: UNICA NEL SUO GENERE! Proponiamo in vendita una villa singola signorile di oltre 500mq! Perfetta per chi cerca spazio e comfort. La proprietà si sviluppa su due livelli e, costruita nel 1975, mantiene il fascino dell'epoca, con dettagli architettonici che ne esaltano la struttura. Gli interni hanno ambienti ben distribuiti, ideali per accogliere una famiglia numerosa o per chi desidera ampi spazi per il lavoro e il tempo libero. La disposizione permette di organizzare gli ambienti in modo funzionale, garantendo privacy e comodità. Al piano terra troviamo un doppio soggiorno di 124mq ed una sala da pranzo di 60mq oltre alla cucina abitabile di 26mq ed al bagno di servizio; al piano superiore ci sono 4 camere da letto ognuna servita dal proprio bagno, oltre ad un altro servizio ad uso comune. Mansarda open space di 90mq. La proprietà è completa di due terrazzi, cantina di 36mq, depandance di 45mq, ricovero per auto esterno coperto di 60mq, portici e pisicna interrata. La villa è circondata da un giardino di 850mq che offre un angolo di tranquillità e relax ed è dotata di aria condizionata e videocitofono. Situata in una zona residenziale, la proprietà è ben collegata ai principali servizi del comune, rendendola una scelta pratica e versatile.

Mostra tutto

Nelle vicinanze

Trasporto pubblico Trasporto pubblico
Trasporto pubblico
450 m
Scuole Scuole
Scuole
430 m
Scuola media statale L. Berinzaghi
510 m
Bar Bar
Café Fontaine
480 m
Bar Gradella
2,4 Km
Ristoranti Ristoranti
Ristoranti
190 m
Il borgo
2,4 Km
Osteria degli Amici
2,4 Km
Leon Rampante
2,6 Km
Mostra tutto

Caratteristiche

Rif.:
61115279
Piano:
2 di 2 (Piano su più livelli)
Posti auto:
4
Balconi:
1
Terrazzi:
2
Camere da letto:
4
Mostra tutto
Prezzo Prezzo
€ 759.000
Rata mutuo Rata mutuo
€ 3.578 / mese
Spese annue Spese annue
€ 0
Proponi il tuo prezzoProponi il tuo prezzo
Immobile valutato con T·Valuta

Classe Energetica

G
G
G
G
G
G
G
G
G
EP globale non rinnovabile:
1.00 kW h/m² anno
EP globale rinnovabile:
1.00 kW h/m² anno
EP invernale del fabbricato:
EP estiva del fabbricato:
Anno di costruzione:
1975
Riscaldamento:
Autonomo
Tipo impianto:
A radiatori
Tipo alimentazione:
Metano

Ti interessa visionare l'immobile?

Fissa un appuntamento  Fissa un appuntamento

Richiedi informazioni

Clicca su Leggi per aprire l'informativa
* Questi campi sono obbligatori

Calcola il tuo mutuo

Semplice e senza impegno
Anticipo

( % )
Mutuo

( % )

pochi semplici passi

inserisci i tuoi dati
Questionario completato
Grazie per aver richiesto un appuntamento senza impegno con un nostro Consulente del Credito e Assicurativo.

Hai inserito correttamente tutti i dati necessari e a breve riceverai una e-mail con un link da convalidare per inviare i tuoi dati.
Affiliato
Tecnopandino Sas
Via Umberto I, 94 26025 Pandino (CR)

Il nostro staff


  • Ettore Grasso
    Affiliato

  • Elisa Rossetti
    Coordinatrice

  • Alessandro Chiappetta
    Collaboratore

  • Andrea Liso
    Collaboratore
Via Umberto I, 94 26025 Pandino (CR)
Zona: Pandino - Palazzo Pignano - Trescore Cremasco - Scannabue
Mostra su mappa
Orari: Dal Lunedì al Venerdì: 9.00-12.30 14.30-20.00 Sabato chiusura ore 18.00
Affiliato
Tecnopandino Sas
Via Umberto I, 94 26025 Pandino (CR)

2026 Tecnocasa Franchising S.p.A. - P. IVA 08365160152 - Via Monte Bianco 60/A 20089 Rozzano (MI). Ogni agenzia ha un proprio titolare ed è autonoma. Privacy policy | Policy utilizzo | Cookie policy